Diese außergewöhnliche Immobilie in idyllischer Lage von Sulzburg vereint historischen Charme mit zeitgemäßer Ausstattung. Offiziell als Zweifamilienhaus im Grundbesitzabgabenbescheid geführt, präsentiert sich das Haus mit Anbau als großzügiges Einfamilienhaus im Landhausstil, das durch seine einzigartige Atmosphäre und den traumhaften Blick auf den Castelberg und den nahen Waldrand besticht.
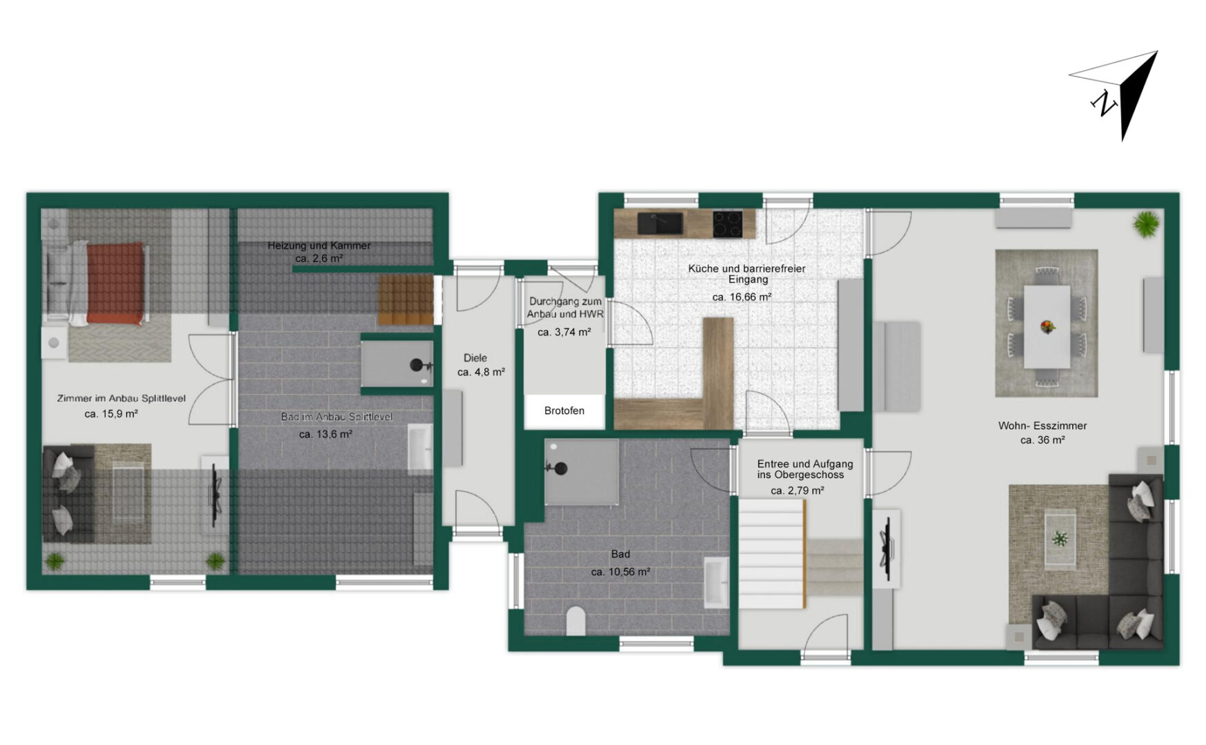
Das ursprünglich im Jahr 1905 erbaute Haus steht auf einem ca. 568 m² großen Grundstück und erstreckt sich über zwei Etagen. Insgesamt verfügt es über fünf Schlafzimmer, drei Badezimmer sowie ein separates WC – ideal für Familien mit Platzbedarf oder Gästen. Der großzügige Wohn- und Essbereich bildet das Herzstück des Hauses und begeistert mit einem charmanten Kachelofen, der an kalten Tagen für eine behagliche Atmosphäre sorgt. Die angrenzende Küche ist ebenfalls großzügig geschnitten und mit einem traditionellen Brotbackofen ausgestattet – ein Highlight für alle Liebhaber ursprünglicher Wohnkultur.
Das Erdgeschoss bietet einen barrierefreien Zugang sowie ein barrierefreies Badezimmer, wodurch sich die Immobilie auch hervorragend für Menschen mit eingeschränkter Mobilität eignet. Ein besonderer Pluspunkt ist der großzügige ca. 38 m² Hobbyraum mit Fußbodenheizung im Erdgeschoss des Anbaus. Dieser Bereich bietet vielfältige Nutzungsmöglichkeiten und könnte bei Bedarf zur zusätzlichen Wohnfläche ausgebaut werden.
In den letzten Jahren wurde das Haus technisch modernisiert: 2014 wurde das Dach vollständig erneuert und gedämmt. Die meisten Fenster wurden 2024 durch moderne, dreifach verglaste Modelle ersetzt. Historische Dielenböden und Innentüren sowie liebevoll erhaltene Details verleihen dem Haus seinen einzigartigen Charakter.
Der schöne Garten rundet dieses besondere Angebot ab: Mit mehreren Außensitzen lädt er zum Verweilen, Entspannen oder geselligen Beisammensein ein.
Ein Zuhause mit Seele und Stil – ideal für alle, die das Besondere suchen.




























