Das einseitig angebaute Einfamilienhaus aus dem Jahr 1958 befindet sich in einem altersgemäßen Zustand und bietet eine einmalige Gelegenheit, Wohnträume nach eigenen Vorstellungen zu verwirklichen. Die Immobilie liegt im Herzen von Freiburg-Hochdorf im Ortsteil Benzhausen und überzeugt mit vielfältigen Möglichkeiten zur Umgestaltung und Modernisierung.
Die Immobilie erstreckt sich über zwei Etagen und bietet eine Wohnfläche von ca. 134,45 m². Eine im Jahr 2006 installierte großflächige Photovoltaikanlage unterstützt die nachhaltige und kosteneffiziente Energieversorgung des Gebäudes. Ergänzend dazu steht ein direkt angrenzender Werkstattraum mit einer Nutzfläche von ca. 20,54 m² zur Verfügung, der vielseitige Nutzungsmöglichkeiten für Handwerk oder Gewerbe bietet.
Der Eingangsbereich in Hochparterre ist über eine kleine Treppe, welche mit Granitplatten belegt ist, erreichbar und führt in die geräumige Diele. Von hier aus gelangen Sie in das Wohnzimmer, das direkt an das Schlafzimmer angrenzt. Die Küche ist zusätzlich mit einem traditionellen Holzofen mit Kochmöglichkeit ausgestattet. Nebenan befinden sich das Badezimmer mit bodentiefer Dusche sowie ein praktischer Abstellraum. Über eine kleine Treppe erreichen Sie die Werkstatt, die vielseitige Nutzungsmöglichkeiten eröffnet.
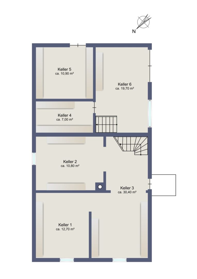
Im Obergeschoss befinden sich zwei weitere Zimmer sowie ein Badezimmer. Zusätzlich finden Sie hier zwei weitere Zimmer, die Ausbaumöglichkeit bieten und derzeit als Speicher genutzt werden. Über einen Außenzugang neben dem Eingangsbereich gelangen Sie zu einem ca. 91,5 m² großen Keller, der Ihnen großzügigen Stauraum bietet.
Nutzen Sie diese einmalige Gelegenheit und kontaktieren Sie uns noch heute für weitere Informationen oder einen Besichtigungstermin.



















